MODULAR HOUSE AKACIJA
House height: 4 m
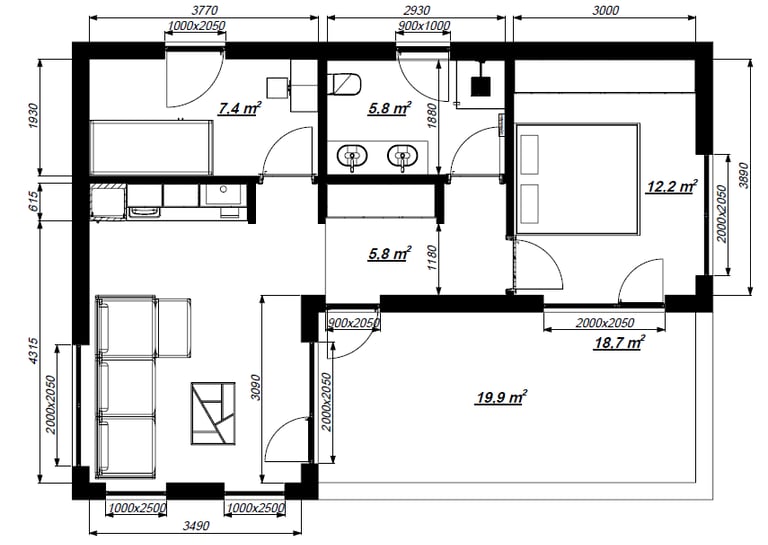
Living area: 50 m2
The basic package includes:
The house structure is made of calibrated certified C24 wood.
Roof and floor - insulated with 200 mm mineral wool. The walls are insulated with 200 mm smineral wool. Steam insulation film are tightly installed.
double-glazed windows are installed in the house. Windows exterior color anthracite, interior color white.
Roof made from tin Classic (black).
The exterior decoration is made of wooden tables and tin Classis (black).
Power supply: output electrical installation; water supply and sewerage.
The basic package not includes:
Interior fittings;
Terrace;
Foundations;
Transport


