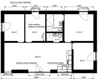
MODULAR HOUSE GLUOSNIS
Living area: 76,4 m2 + 7,6 m2 entresol
The basic package includes:
The house structure is made of calibrated certified C24 wood.
Floor and walls - insulated with 280 mm mineral wool, roof insulated 300 mm mineral wool. Steam insulation film are tightly installed.
triple-glazed windows are installed in the house. Windows color anthracite outside and white inside.
roof made from tin;
the exterior decoration is made of painted wooden panels.
power supply: output electrical installation; water supply and sewerage.
The basic package not includes:
Foundations;
Transportation;
Interior fittings;
Terrace
We can take care of the foundations and transport.
It is also possible to agree on non-standard solutions: the color of the building facade, the choice and color of interior materials, window and door profiles and tones. Please contact us for more details.
